Quartiere : 53 000 €/m²
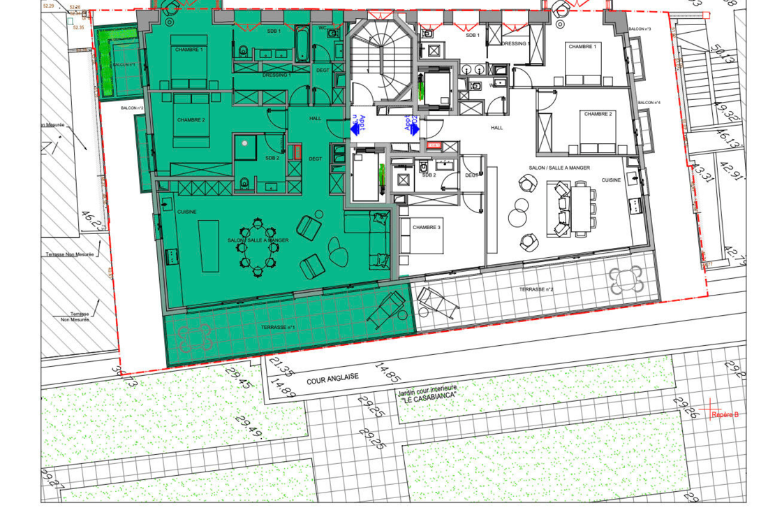
ContattateCi Pianta dell'immobile
Nuovo appartamento di lusso con 2 camere da letto a Villa Ariane, Monaco. Interno di 129 m², terrazza, servizio portineria. Consegna prevista per il primo trimestre del 2026.
Villa Ariane - all'interno del nuovo complesso esclusivo, situato al 16 di Boulevard d'Italie, questo appartamento di recente costruzione offre un ambiente abitativo raffinato in prossimità di tutti i comfort. Ristoranti, negozi e le spiagge di Larvotto sono tutti a breve distanza a piedi, rendendo la posizione sia pratica che molto desiderabile.
Progettato per offrire comfort moderno e volumi generosi, l'appartamento presenta una superficie interna totale di 129,62 mq. La disposizione comprende un ampio soggiorno e sala da pranzo, una cucina completamente attrezzata, due camere da letto, due bagni e un WC separato per gli ospiti. La pianta ben bilanciata garantisce un'eccellente circolazione e il comfort ottimale quotidiano.
L'appartamento è completato da 34,10 mq di spazio esterno a terrazza che estendono le aree abitative e offrono un piacevole collegamento con l'esterno.
Villa Ariane è il risultato di una trasformazione architettonica di alta qualità, che fonde senza soluzione di continuità il fascino del patrimonio di Monaco con il design contemporaneo e materiali di alta qualità. La residenza pone una forte enfasi sulle prestazioni acustiche e termiche, oltre a principi costruttivi sostenibili e bioclimatici, garantendo un comfort ottimale durante tutto l'anno.
I residenti beneficieranno di un servizio di concierge, situato in un atrio d'ingresso splendidamente progettato, rafforzando il senso di esclusività e vita raffinata. Più di un semplice indirizzo, Villa Ariane incarna una vera arte di vivere, dove lusso, comfort e modernità si uniscono armoniosamente.
Una rara opportunità per acquisire un appartamento di nuova costruzione in uno dei quartieri più ambiti di Monaco. Consegna prevista: Q1 2026
A proposito del quartiere La Rousse-Saint Roman: Questo quartiere si trova nella parte più orientale di Monaco, con vista sul quartiere del Larvotto e il lungomare. È anche al confine con il comune di Roquebrune Cap Martin e Beausoleil in Francia. È la seconda zona più popolata del Principato, e molti residenti apprezzano la sua vicinanza alle spiagge del Larvotto e di Monte Carlo, i suoi negozi e le sue numerose scuole primarie e secondarie. La torre più alta di Monaco, la famosa Torre Odeon, con i suoi appartamenti di lusso, si trova in questa zona. È nel cuore del quartiere La Rousse - Saint-Roman, in pieno rinnovamento urbano, che si svolge ogni anno il prestigioso torneo di tennis "Monaco Master Class".
We look forward to hearing from you and are at your disposal to organize a visit of this property.
Couldn't find a property that suits your needs? Contact us so that we can offer you a selection of properties in line with your project
Related properties
Questo documento non rappresenta un'offerta o un contratto. Tutte le misure, superfici e distanze sono approssimative. Le descrizioni e planimetrie sono date a titolo indicativo e la loro esattezza non è garantita. Le fotografie mostrano solo alcune parti della proprietà alla data in cui son state fatte. L'offerta di Vendita è valida salvo in caso di Vendita/affitto, ritiro dalla Vendita/affito o cambio del prezzo o altra condizione, senza avviso preliminare.







