Район : 65 000 €/м²
Свяжитесь с нами Property floor plan
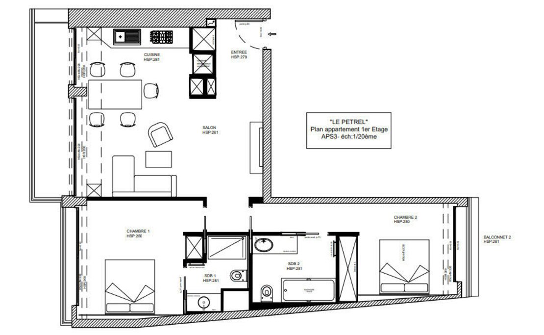
Красивая 3-комнатная квартира смешанного назначения (жилая или офисная), расположенная на 1-м этаже (высота 2-го уровня) здания "Le Petrel", современной резиденции с лифтом, идеально расположенной на единственной пешеходной улице княжества.
Светлая, незагроможденная, изысканная - всего в нескольких шагах от Порта Геркулес, эта квартира была полностью отремонтирована с использованием самых современных материалов и особой тщательностью в отделке.
Он состоит из прихожей, гостиной и открытой кухни с террасой, а также двух спален и двух ванных комнат с террасами.
О районе Кондамин / Порт: Это самый оживленный район Монако, расположенный в самом сердце княжества между Монако-Вилль, Монте-Карло и портом Эркюль. Это очень оживленный и востребованный район, потому что многие любят его пешеходные торговые улицы и знаменитый рынок Кондамин, который открыт каждый день в году с 1880 года. Он также является местом проведения многих международных мероприятий, таких как Гран-при Формулы-1, прыжки с трамплина и выставка яхт. Он имеет центральное расположение с прямым доступом к железнодорожному вокзалу Монако и находится между всеми школами княжества, в частности, музыкальной школой Монако, Международной школой Монако или школой Кондамин.
We look forward to hearing from you and are at your disposal to organize a visit of this property.
Couldn't find a property that suits your needs? Contact us so that we can offer you a selection of properties in line with your project
This document does not form part of any offer or contract. All measurements, areas and distances are approximate. The information and plans contained herein are believed to be correct, however, their accuracy is not guaranteed. The photographs show only certain parts of the property at the time they were taken. This offer is subject to change of price or other conditions, without prior notice.
 
 
                     
                     
                     
                     
                     
                     
                     
                     
                     
                     
                     
                     
                                 
                         



 
                 
                         
                         
                    


 
                         
                        


 
                             
                             
                         
                 
                 
                 
                 
                