Quartier : 54 000 €/m²
Contactez-nous Plan du produit
Situé dans une élégante résidence avec concierge, au cœur du quartier des plages, ce spacieux appartement bénéficie d’un accès direct par ascenseurs à la Place des Moulins ainsi qu’aux plages du Larvotto, offrant un cadre de vie rare et privilégié.
Entièrement rénové avec des prestations de qualité, l’appartement profite d’une agréable vue mer et d’une distribution optimale des espaces. Il se compose de :
-
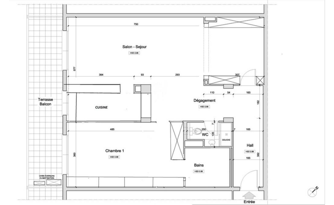
Un vaste hall d’entrée avec toilettes invités
-
Un séjour spacieux et lumineux ouvrant sur une loggia
-
Une cuisine ouverte, moderne et entièrement équipée
-
Une chambre de maître avec placards et salle de bains attenante
-
Une petite chambre ou bureau, idéale pour un espace de travail ou d’appoint
Prestations complémentaires : climatisation, double vitrage, volets roulants électriques.
Un bien rare, idéal en résidence principale, pied-à-terre ou investissement patrimonial à Monaco.
A propos du quartier de Monte-Carlo ou le Carré d’Or: Monte-Carlo est le quartier emblématique de Monaco. Il se situe autour du Casino de Monaco et de son magnifique parc, de l’Hôtel de Paris et de l’Hôtel Hermitage, et est entouré de boutiques de luxe et du centre commercial Le Métropole. C’est le quartier le plus peuplé de Monaco. L’immobilier y est exceptionnel, on y trouve les appartements les plus somptueux et prestigieux de la principauté, offrant des vues hors du commun.
Nous nous réjouissons de votre contact et nous nous tenons à votre disposition pour l’organisation d’une visite de ce bien
Vous n’avez pas trouvé de bien correspondant à vos besoins ? Contactez-nous afin que nous puissions vous proposer une sélection de biens en adéquation avec votre projet.
Quartier : 54 000 €/m²
Video
Plan du produit
Contactez-nous
Laissez-nous vous assister
Découvrez notre nouveau magazine
Biens similaires
Ce document ne fait partie d'aucune offre ou contrat. Toutes mesures, surfaces et distances sont approximatives. Le descriptif et les plans ne sont donnés qu'à titre indicatif et leur exactitude n'est pas garantie. Les photographies ne montrent que certaines parties de la propriété. L'offre est valable sauf en cas de vente, retrait de vente, changement de prix ou d'autres conditions, sans préalable.








