Quartier : 53 000 €/m²
Contactez-nous Plan du produit
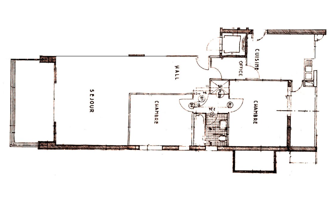
Château Périgord - Appartement spacieux offrant une magnifique vue sur la mer méditerranée situé en étage élevé d'une prestigieuse résidence à Monaco. Piscine et service de conciergerie H24/7. L'appartement se compose comme suit :
- Hall d'entrée
- Cuisine avec loggia
- Chambre de maître
- Salle de bains
- Chambre / Dressing
- Salon
- Terrasse
- Possibilité de louer ou acheter une place de parking
À propos du quartier La Rousse-Saint Roman : Ce quartier est situé dans la partie la plus à l’Est de Monaco, surplombant le quartier du Larvotto et le front de mer. Il est aussi à la frontière avec la commune de Roquebrune Cap Martin et de Beausoleil en France. C’est le deuxième quartier le plus peuplé de la Principauté, beaucoup de résidents apprécient la proximité avec les plages du Larvotto et Monte-Carlo, ses commerces, et de nombreuses écoles primaires et secondaire. C’est dans ce quartier que se situe la plus haute tour de Monaco la célèbre Tour Odéon avec ses appartements de très haut standing. C’est au sein du quartier La Rousse - Saint-Roman, en plein renouveau urbanistique que se déroule chaque année le prestigieux tournois de Tennis « Monaco Master Class ».
Nous nous réjouissons de votre contact et nous nous tenons à votre disposition pour l’organisation d’une visite de ce bien
Vous n’avez pas trouvé de bien correspondant à vos besoins ? Contactez-nous afin que nous puissions vous proposer une sélection de biens en adéquation avec votre projet.
Biens similaires
Ce document ne fait partie d'aucune offre ou contrat. Toutes mesures, surfaces et distances sont approximatives. Le descriptif et les plans ne sont donnés qu'à titre indicatif et leur exactitude n'est pas garantie. Les photographies ne montrent que certaines parties de la propriété. L'offre est valable sauf en cas de vente, retrait de vente, changement de prix ou d'autres conditions, sans préalable.








