Quartier : 76 000 €/m²
Contactez-nous Plan du produit
Le Montaigne A - dans une prestigieuse résidence du Carré d'or à Monaco avec service de conciergerie H24/7, joli studio à usage mixte situé dans un étage élevé. Idéal investisseur
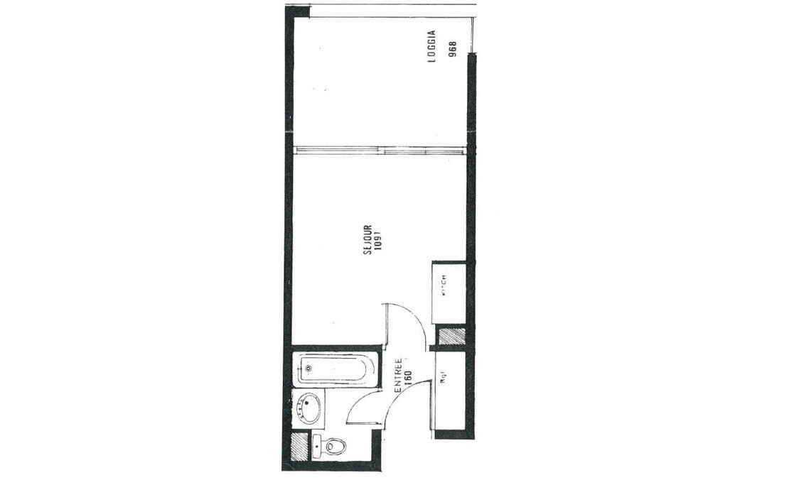
L'appartement se compose comme suit :
- Le hall d'entrée
- La salle de bains
- La kitchenette
- Le salon
- La loggia
Une cave complète ce bien.
A propos du Carré d'Or : Le Carré d'Or situé au cœur du quartier de Monte-Carlo est un quartier emblématique de Monaco. Il est situé autour du Casino de Monaco avec ses boutiques de luxe et du centre commercial Métropole. L'immobilier du quartier de Monte-Carlo est exceptionnel. Vous y trouverez les appartements les plus somptueux et les plus prestigieux de la principauté, offrant des vues exceptionnelles. Un quartier de rêve où acheter un appartement est un privilège que peu peuvent se permettre.
Nous nous réjouissons de votre contact et nous nous tenons à votre disposition pour l’organisation d’une visite de ce bien
Vous n’avez pas trouvé de bien correspondant à vos besoins ? Contactez-nous afin que nous puissions vous proposer une sélection de biens en adéquation avec votre projet.
Biens similaires
Ce document ne fait partie d'aucune offre ou contrat. Toutes mesures, surfaces et distances sont approximatives. Le descriptif et les plans ne sont donnés qu'à titre indicatif et leur exactitude n'est pas garantie. Les photographies ne montrent que certaines parties de la propriété. L'offre est valable sauf en cas de vente, retrait de vente, changement de prix ou d'autres conditions, sans préalable.








